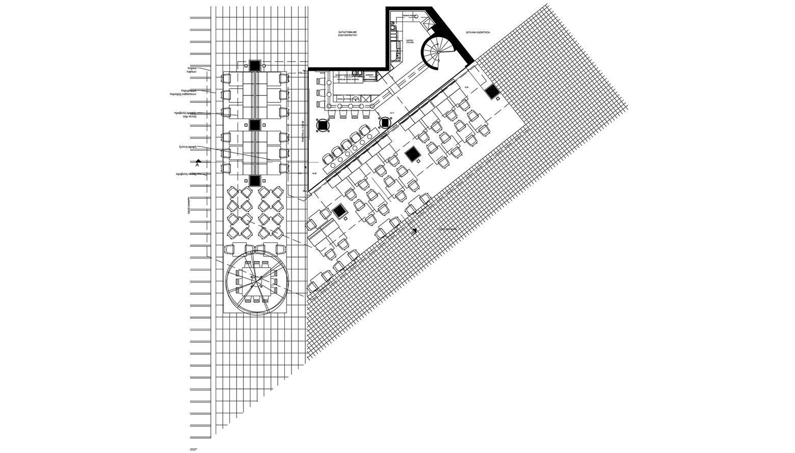
Το καλοκαίρι του 2015, ανακαινίσαμε ένα λιλιπούτειο cafe/bar/εστιατόριο με τριγωνική κάτοψη, στη γωνία των οδών Κανάρη και Μηλιώνη στο Κολωνάκι. Δεδομένου ότι ήταν ήδη δημοφιλές στέκι επωνύμων, έπρεπε με την ανακαίνιση να καλυφθούν τόσο οι υψηλές απαιτήσεις του ιδιοκτήτη, όσο και οι προσδοκίες των φίλων και πελατών του. Ένα από τα κύρια στοιχεία της επέμβασης, είναι η επένδυση των κολονών και των δοκών της όψης με πορτοκαλί αλουμινένιες δοκίδες, με στόχο να ξεχωρίσει το μικροσκοπικό κατάστημα από τις πολλές γειτονικές του επιχειρήσεις.