Maris Lefakis Galleries Maris Lefakis Galleries

Art Galleries
Short description

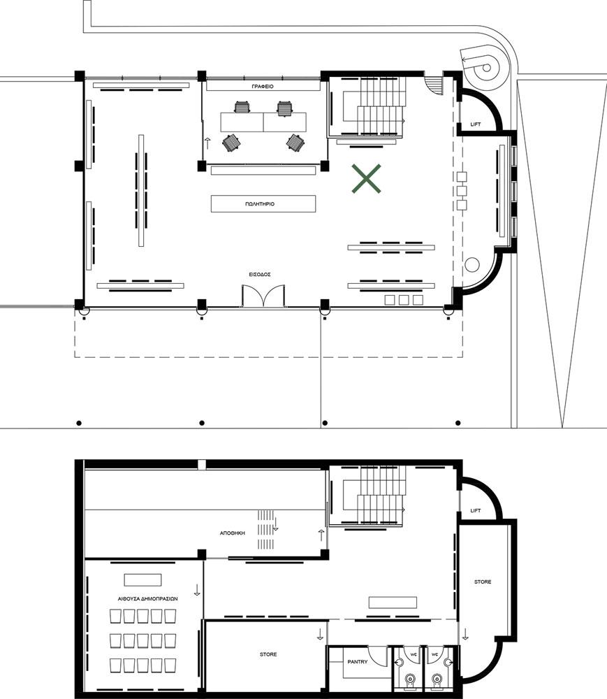
Οι ιδιοκτήτες των γκαλερί Maris Lefakis, Ευάγγελος και Φοίβος Λεφάκης, μας ανέθεσαν το σχεδιασμό μιας σειράς γκαλερί στα βόρεια προάστια. Κάθε γκαλερί έχει το δικό της concept ανάλογα με το κτίριο στο οποίο στεγάζεται και τα ιδιαίτερα στοιχεία της εκάστοτε περιοχής στην οποία βρίσκεται.

Description
Interior & façade design  
Location
Athens, Greece
Status
Concept design, 2018
Would you like to discuss a project?
VISIT
Tataki 41
166 75, Glyfada, Greece
E-MAIL
SOCIAL
© 2025 molindris + associates. All rights reserved. - Όροι χρήσης
c BACK TO TOP